expo KERA
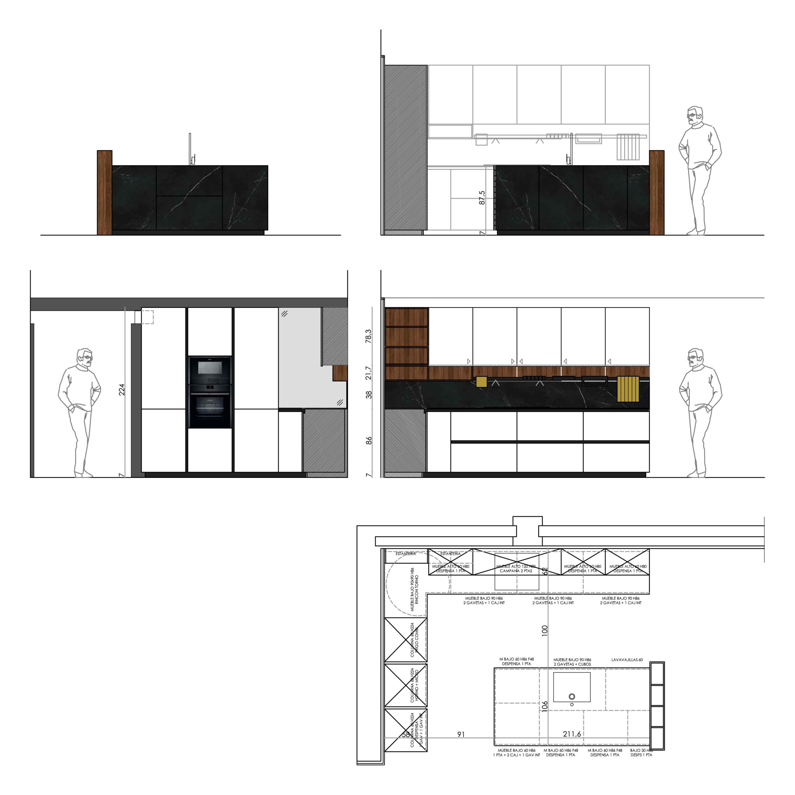
Conjunto de muebles de cocina organizados en forma de L con isla, donde la laca alto brillo color blanco nieve refleja la luz iluminando toda la estancia.
Las estanterías de madera laminada en color nogal Le Midi, suspendidas bajo los muebles altos, así como la jardinera adosada a la isla, aportan ese toque de calidez al espacio. Un espejo bronce estratégicamente ubicado, provoca un efecto de amplitud visual, extendiendo el espacio sobre la encimera.
La isla se alza como protagonista en este espacio luminoso y elegante gracias a su potente volumen bien definido en una envolvente de piedra sinterizada. Puertas, costados y encimera realizados en el mismo material, se funden en una escultórica pieza que se integra perfectamente en cualquier salón.
La espectacular superficie MDi de piedra sinterizada color Storm negro de Inalco se repite también en la encimera de la zona de cocción, plegándose hasta alcanzar las estanterías de los muebles colgados, formando otra envolvente de aspecto pétreo que unifica todo el conjunto.
OFERTA MOBILIARIO
La oferta de mobiliario de esta exposición incluye:
- Muebles bajos en L realizados en laca brillo color blanco nieve de altura 86,5cm + 7cm zócalo con golas horizontales de alumino lacado negro, completamente equipados con gavetas y cajones interiores, cuberteros, elementos divisorios y un torno de bandejas giratorias.
- Muebles columna en laca brillo color blanco nieve para integrar los hornos y el frigorífico. Columna despensa equipada con gavetas interiores. Altura de las columnas 224cm + zócalo 7cm. Golas verticales en aluminio lacado negro.
- Muebles en isla de altura 86,5cm + 7cm de zócalo, realizados en material de piedra sinterizada color storm negro con costados biselados en el mismo material.
- Estantería laminada de madera color nogal le midi con iluminación integrada.
- Elemento separador - jardinera laminada de madera color nogal le midi.
- Sistema DOMO en aluminio lacado negro con iluminación integrada completamente equipado con accesorios en aluminio negro y madera de nogal para el espacio sobre la encimera.
PVP MUEBLES | 34.200€ |
DESCUENTO EXPO | 60% |
PVP OFERTA EXPO | 13.680€* |
* IVA, transporte y montaje INCLUIDOS. Precios válidos para la Comunidad de Madrid. Otras provincias consultar. Esta oferta tendrá validez hasta la liquidación de la exposición.
OFERTA ENCIMERAS
descripción | PVP | PVP oferta |
ENCIMERA DE PIEDRA SINTERIZADA INALCO SILK STORM NEGRO NATURAL 12MM GROSOR + TRASERAS REALIZADAS EN EL MISMO MATERIAL | 5.600€ | 2.800€* |
*IVA, transporte y montaje incluidos. Precios válidos para la Comunidad de Madrid. Otras provincias consultar.
Solo podrá beneficiarse de esta oferta si adquiere los muebles de la exposición.
OFERTA ELECTRODOMÉSTICOS
DESCRIPCIÓN | PVP | PVP OFERTA |
|---|---|---|
HORNO siemens STUDIOLINE HS836GVB6 100% VAPOR | 1.990€ | 995€* |
microondas siemens STUDIOLINE BF834RGB1 BE634LGS1 | 800€ | 400€* |
LAVAVAJILLAS INTEGRABLE siemens STUDIOLINE SX95E801BE | 1.450€ | 725€* |
placa FLEXINDucción siemens EX975LVV1E | 1.560€ | 780€* |
frigorífico combi integrable smeg c8194tne | 1.690€ | 845€ |
fregadero plados regola re791ktb + grifo escamoteable con tabla de cristal templado negro | 1.990€ | 995€ |
* IVA, transporte y montaje INCLUIDOS. Precios válidos para la Comunidad de Madrid. Otras provincias consultar. Esta oferta tendrá validez hasta la liquidación de la exposición.
Solo podrá beneficiarse de esta oferta de electrodomésticos si adquiere los muebles de la exposición.
VER PLANO

Para solicitar información adicional sobre esta exposición o concertar una cita para verla puede ponerse en contacto con el showroom de San Sebastián de los Reyes o bien pedir cita aquí


